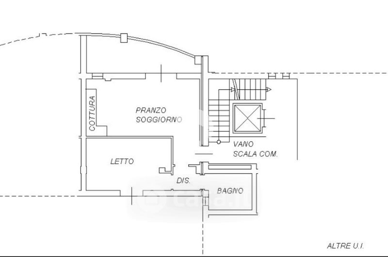
Appartamento in vendita Via Don Lorenzo Milani 8, Bibbiano
Salva
Casa.it
1/18
  • Street View
  • Map