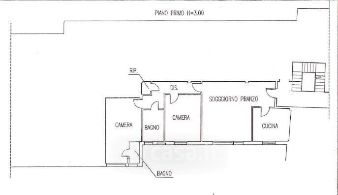
Appartamento in vendita Via Francesco Orioli , Bologna
Salva
Casa.it
1/25
  • Street View
  • Map