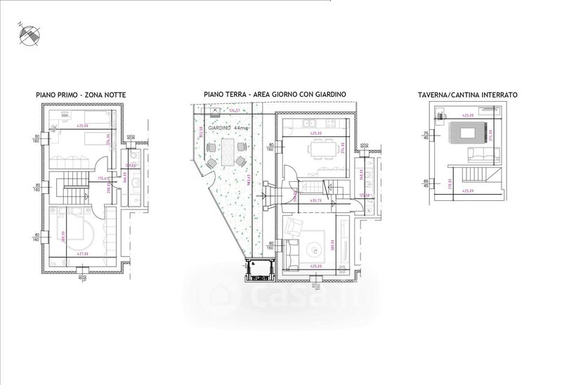
Appartamento in vendita Via Raffaele Bombelli 27, Bologna
Salva
Casa.it
1/26
  • Street View
  • Map