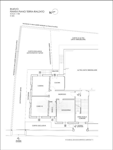
Appartamento in vendita Via Baldassarre Carrati 26, Bologna
Salva
Casa.it
1/27
  • Street View
  • Map