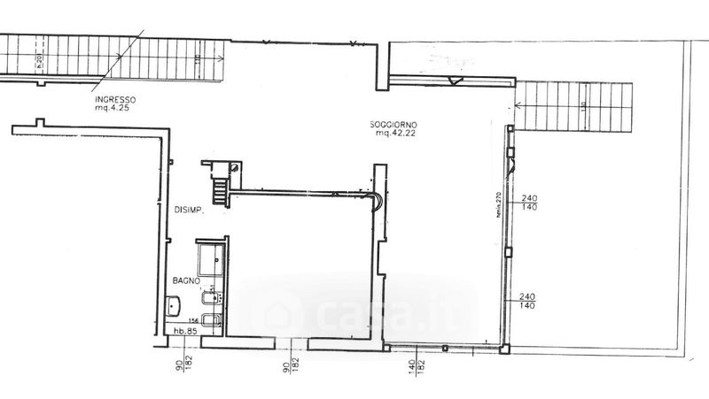
Appartamento in vendita Via Don Giovanni Fornasini 3, Bologna
Salva
Casa.it
1/39
  • Street View
  • Map