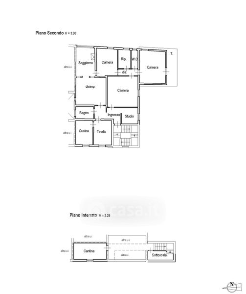
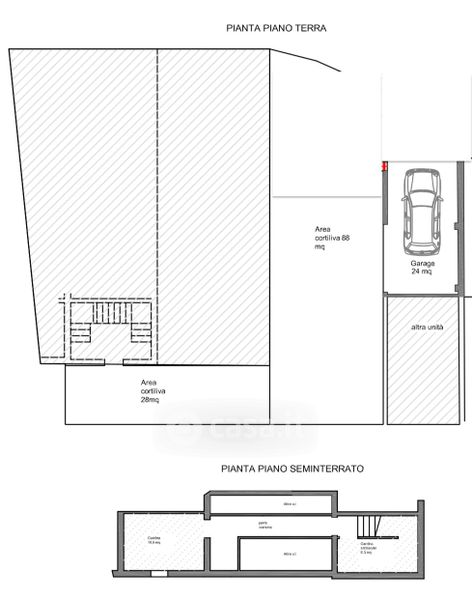
Appartamento in vendita Via Giovanni Battista Melloni , Bologna
Salva
Casa.it
1/25
  • Street View
  • Map