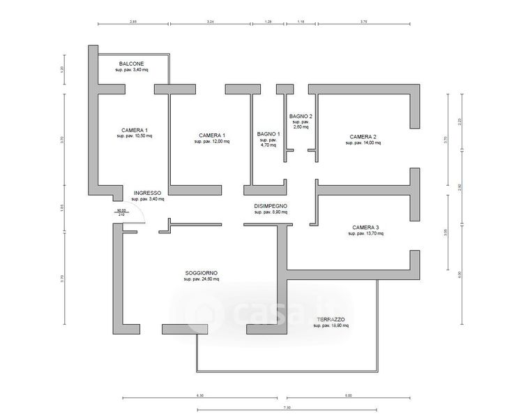
Appartamento in vendita Via Gaspare Tagliacozzi , Bologna
Salva
Casa.it
1/5
  • Street View
  • Map