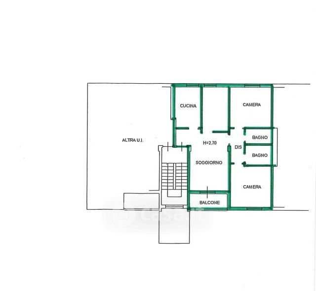
Appartamento in vendita Via Luigi Einaudi 6, Bologna
Salva
Casa.it
1/38
  • Street View
  • Map