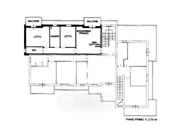
Appartamento in vendita Via Verdeta 90 B, Bomporto
Salva
Casa.it
1/19
  • Street View
  • Map