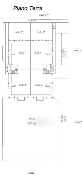
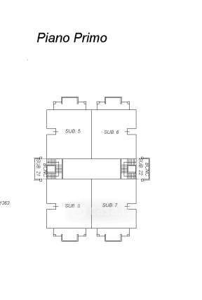
Appartamento in vendita Via della Costituzione , Borgo Val di Taro
Salva
Casa.it
1/30
  • Street View
  • Map