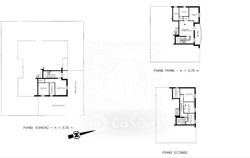
Appartamento in vendita Via Pablo Neruda 6, Cadelbosco di Sopra
Salva
Casa.it
1/14
  • Street View
  • Map