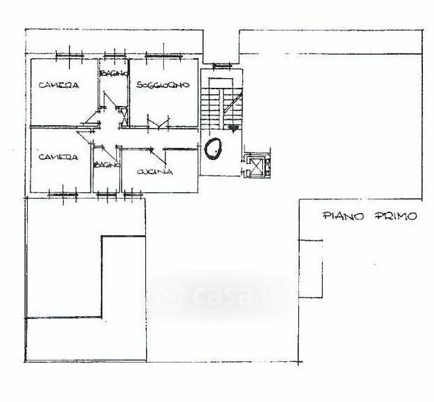
Appartamento in vendita Via Longarola , Calderara di Reno
Salva
Casa.it
1/16
  • Street View
  • Map