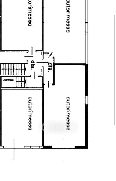
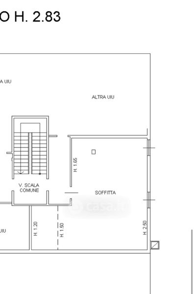
Appartamento in vendita Via E. Ronzoni 4, Campogalliano
Salva
Casa.it
1/33
  • Street View
  • Map