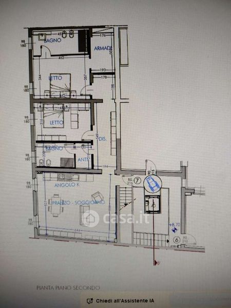
Appartamento in vendita Via Ciro Menotti , Carpi
Salva
Casa.it
1/13
  • Street View
  • Map