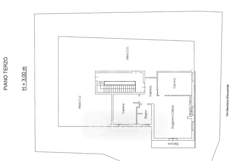
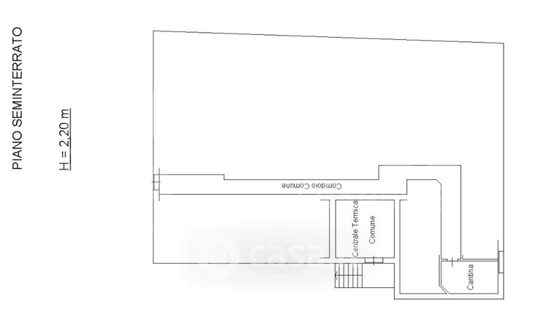
Appartamento in vendita Via Massarenti Giuseppe 6, Casalecchio di Reno
Salva
Casa.it
1/20
  • Street View
  • Map