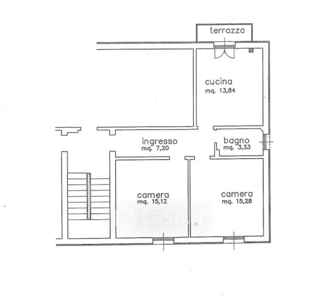
Appartamento in vendita Via Bazzanese 29, Casalecchio di Reno
Salva
Casa.it
1/25
  • Street View
  • Map