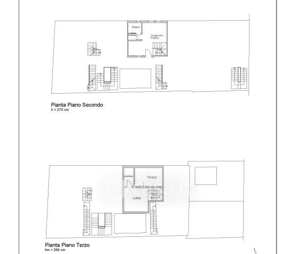
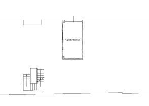
Appartamento in vendita Via Radici 11, Casalgrande
Salva
Casa.it
1/15
  • Street View
  • Map