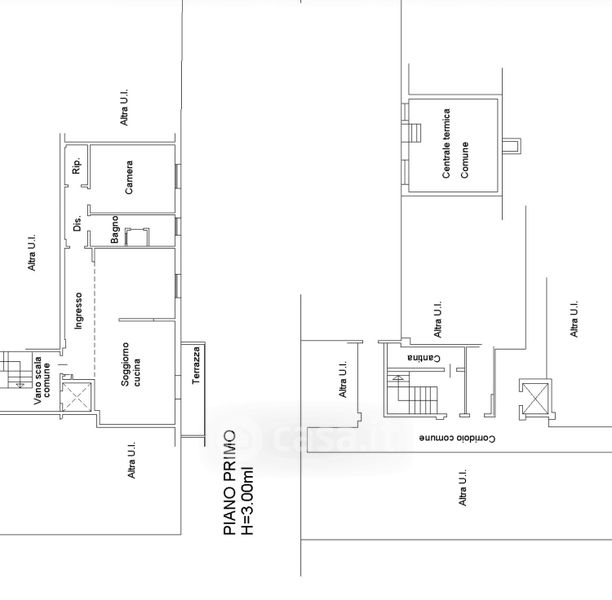
Appartamento in vendita Via 1º Maggio 13, Castel Maggiore
Salva
Casa.it
1/37
  • Street View
  • Map