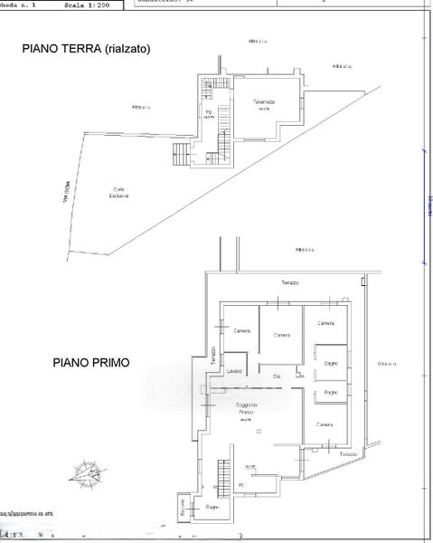
Appartamento in vendita Via Flavio Gioia 6, Castel San Pietro Terme
Salva
Casa.it
1/105
  • Street View
  • Map