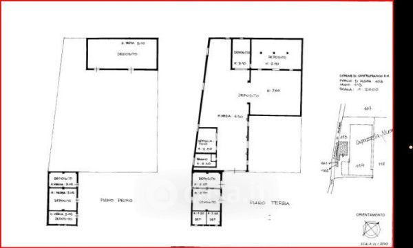
Appartamento in vendita Via Cassola di Sopra , Castelfranco Emilia
Salva
Casa.it
1/21
  • Street View
  • Map