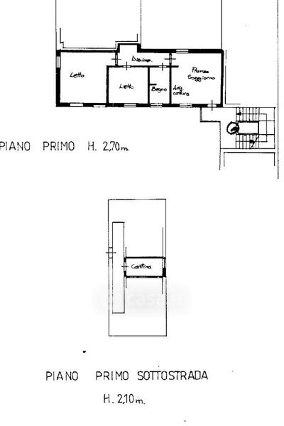
Appartamento in vendita Via Don Luigi Roncagli 54, Castelfranco Emilia
Salva
Casa.it
1/23
  • Street View
  • Map