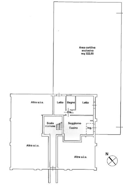
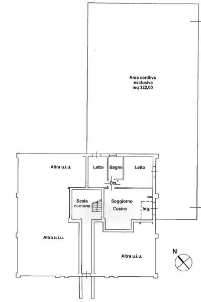
Appartamento in vendita Via Claudia 6, Castelfranco Emilia
Salva
Casa.it
1/29
  • Street View
  • Map