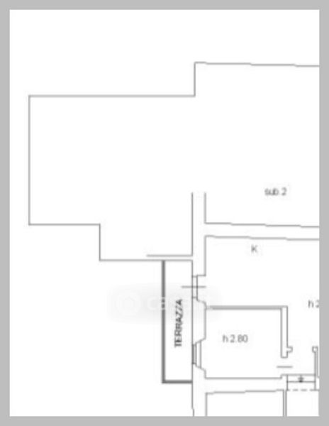
Appartamento in vendita Via Rocca , Castellarano
Salva
Casa.it
1/32
  • Street View
  • Map