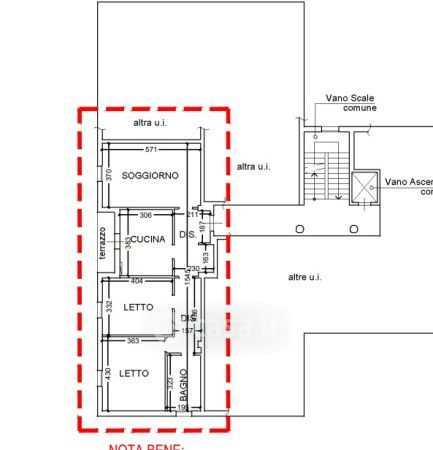
Appartamento in vendita Via G. Matteotti 122, Castello d'Argile
Salva
Casa.it
1/12
  • Street View
  • Map