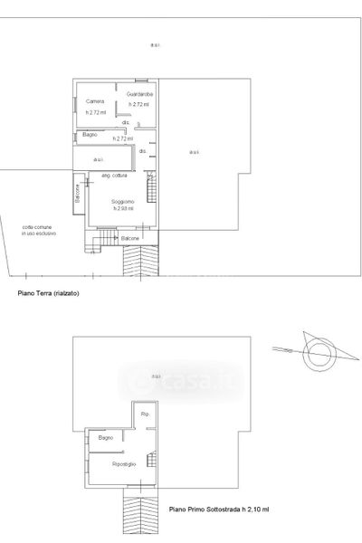
Appartamento in vendita Via Pinarella 606, Cervia
Salva
Casa.it
1/41
  • Street View
  • Map