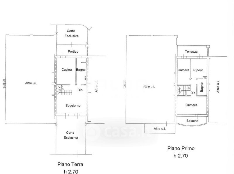
Appartamento in vendita Via Giovanni Bernardi 25, Faenza
Salva
Casa.it
1/31
  • Street View
  • Map