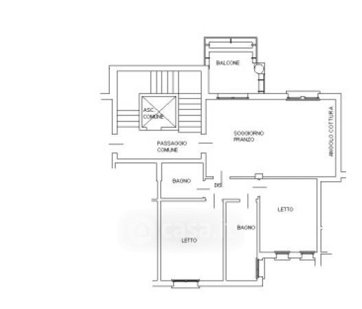
Appartamento in vendita Via Giorgio Perlasca , Felino
Salva
Casa.it
1/13
  • Street View
  • Map