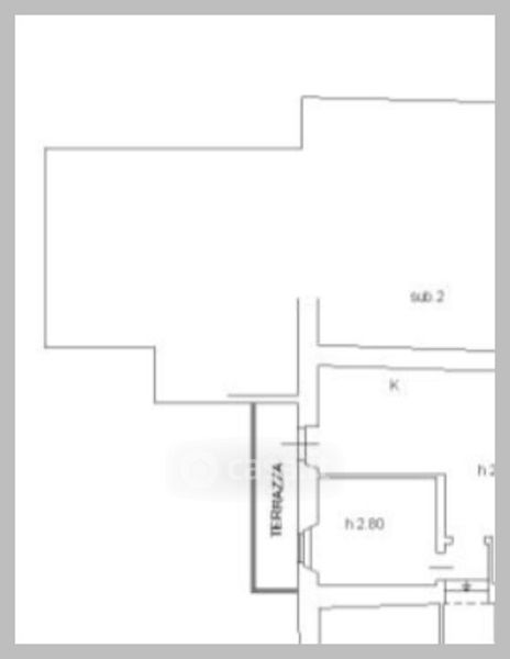
Appartamento in vendita Via Giovanni Bulgarelli , Ferrara
Salva
Casa.it
1/32
  • Street View
  • Map