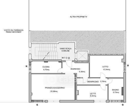
Appartamento in vendita Via Bologna , Ferrara
Salva
Casa.it
1/16
  • Street View
  • Map