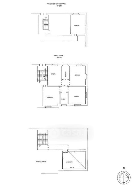
Appartamento in vendita Viale I Maggio , Fidenza
Salva
Casa.it
1/18
  • Street View
  • Map