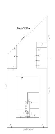
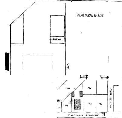
Appartamento in vendita Viale della Resistenza , Finale Emilia
Salva
Casa.it
1/21
  • Street View
  • Map