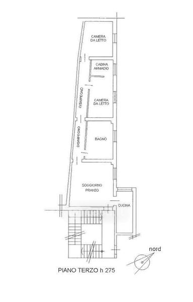
Appartamento in vendita Corso della Repubblica , Forlì
Salva
Casa.it
1/24
  • Street View
  • Map