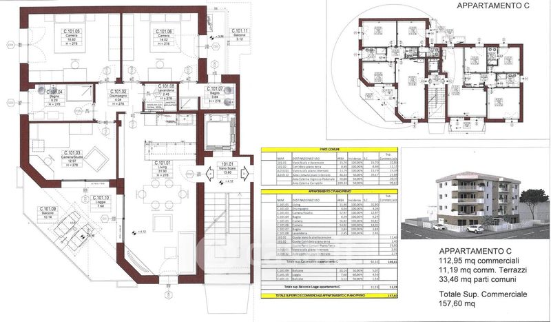
Appartamento in vendita Via Raffaello Sanzio 8, Forlì
Salva
Casa.it
1/7
  • Street View
  • Map