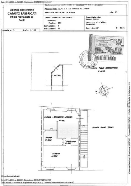
Appartamento in vendita Piazzale della Pieve , Forlì
Salva
Casa.it
1/39
  • Street View
  • Map