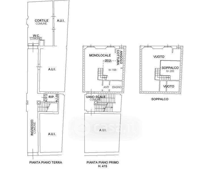
Appartamento in vendita Corso Giuseppe Garibaldi , Forlì
Salva
Casa.it
1/20
  • Street View
  • Map