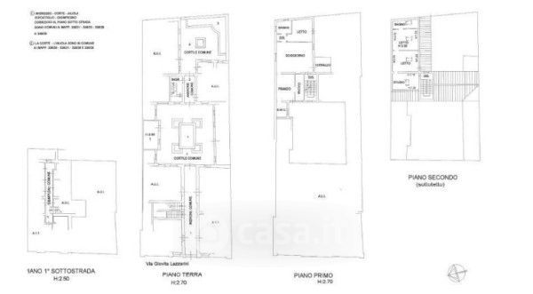
Appartamento in vendita Via Giovita Lazzarini , Forlì
Salva
Casa.it
1/22
  • Street View
  • Map