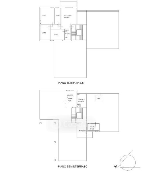
Appartamento in vendita Via Guglielmo Marconi , Fornovo di Taro
Salva
Casa.it
1/33
  • Street View
  • Map