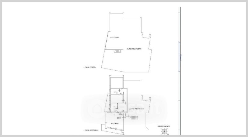
Appartamento in vendita Via Zecchiere , Guastalla
Salva
Casa.it
1/39
  • Street View
  • Map