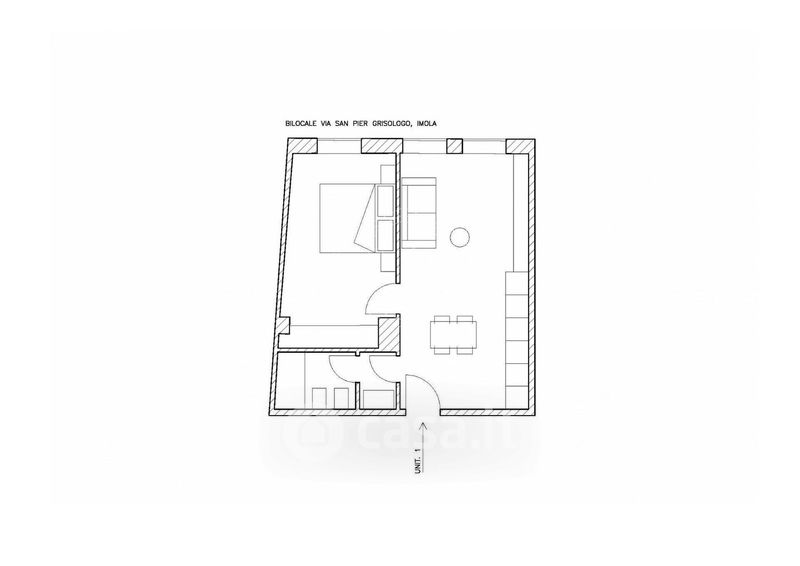
Appartamento in vendita Via San Pier Grisologo , Imola
Salva
Casa.it
1/15
  • Street View
  • Map