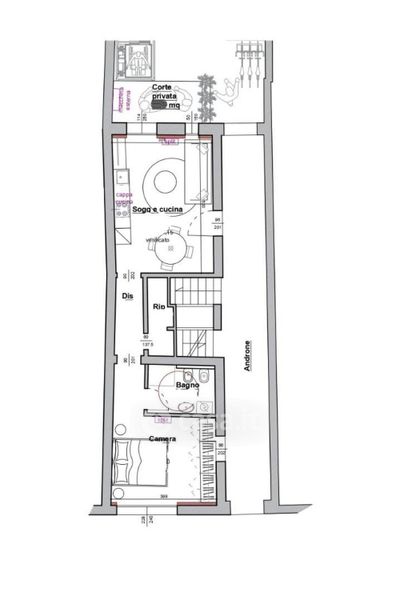
Appartamento in vendita Via Emilia 10, Imola
Salva
Casa.it
1/6
  • Street View
  • Map