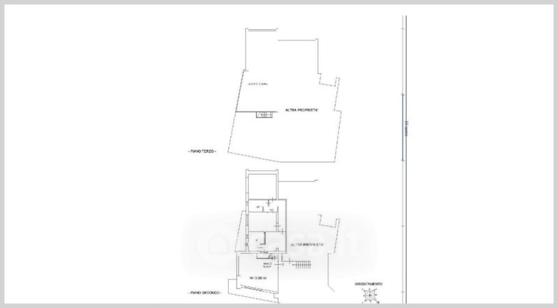
Appartamento in vendita Via della Valle , Loiano
Salva
Casa.it
1/32
  • Street View
  • Map