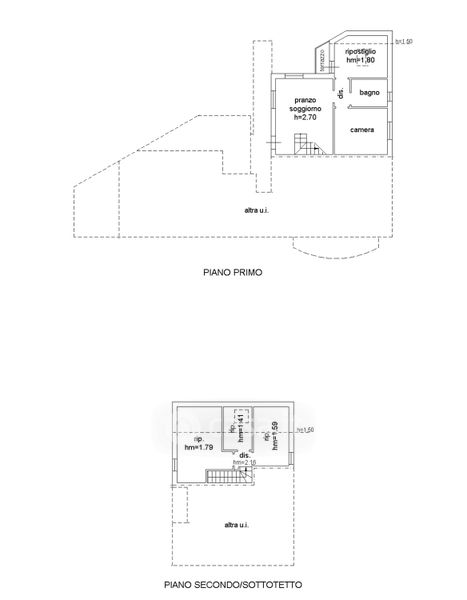
Appartamento in vendita Via Gilles Villeneuve 11, Misano Adriatico
Salva
Casa.it
1/18
  • Street View
  • Map