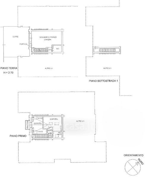
Appartamento in vendita Via Claudio Monteverdi 8, Misano Adriatico
Salva
Casa.it
1/23
  • Street View
  • Map