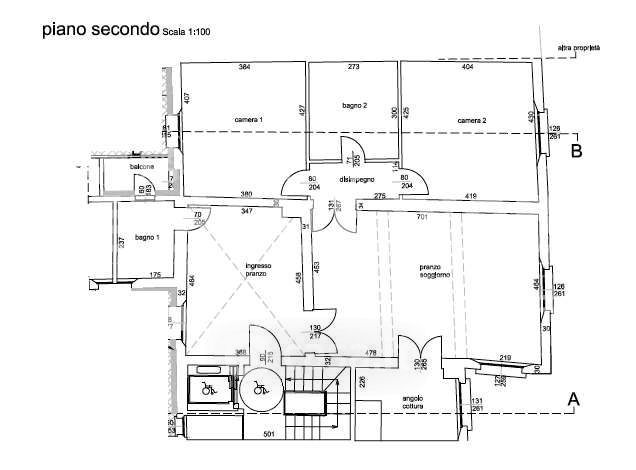
Appartamento in affitto Corso Canalchiaro , Modena
Salva
Casa.it
1/26
  • Street View
  • Map