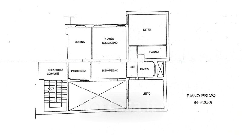
Appartamento in vendita Via Nazario Sauro , Modena
Salva
Casa.it
1/13
  • Street View
  • Map