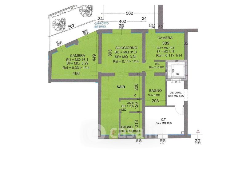
Appartamento in affitto Via Francesco Bianchi Ferrari , Modena
Salva
Casa.it
1/14
  • Street View
  • Map