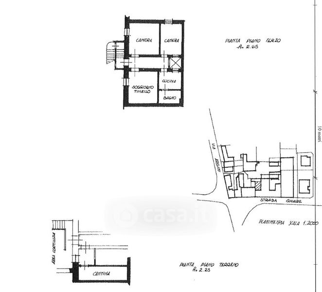
Appartamento in vendita Via Ghiare , Montechiarugolo
Salva
Casa.it
1/19
  • Street View
  • Map