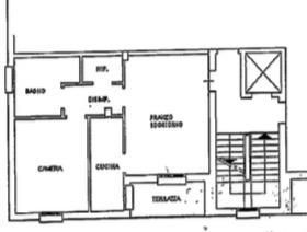
Appartamento in vendita Via dell'Osteria , Monterenzio
Salva
Casa.it
1/53
  • Street View
  • Map