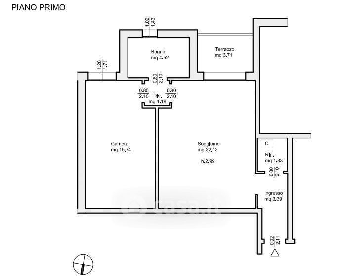
Appartamento in vendita Via dei Colli , Monzuno
Salva
Casa.it
1/16
  • Street View
  • Map