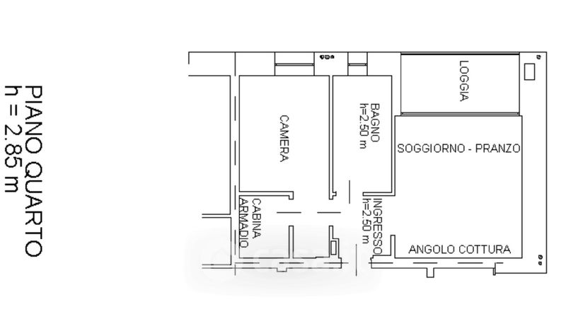
Appartamento in vendita Via Stradello Marca-Relli Conrad , Parma
Salva
Casa.it
1/29
  • Street View
  • Map